모델하우스1600-8919
부산 기장 오시리아역 라티브 라우어 시니어 실버타운 시설 특별공급 타입별 분양 가격 문의 모델하우스 방문 사전예약 안내 본문
부산 기장 오시리아역 라티브 라우어 시니어 실버타운 시설 특별공급 타입별 분양 가격 문의 모델하우스 방문 사전예약 안내
모델하우스 대표번호 2025. 5. 22. 10:141902

■ 분양 관련 문의 ■
분양 홍보관 대표번호
관련문의 / 타입종류 / 분양가격 / 홍보관 위치
일육공공 - 팔구일구
편안하고 깊이 있는 상담을 위하여방문은 사전예약을 통해서만 가능하오니 양해 부탁드립니다.


▶ 라티브(2025년02월예정) _ 부산광역시 기장군 동부산관광3로49

◐ 기장 오시리아 라우어 사업개요

▶ 부산광역시 기장군 기장읍 당사리 530번지 외 일원 / 지하4층 ~ 지상18층(최고층) 총7개동 / 라우어1차 574실, 라우어2차 408실 / 시니어타운, 헬스타운, 근린생활시설, 메디컬콤플레스, 의료시설, 복리부대시설 등 공급예정
◐ 오시리아 라우어 PREMIUM

◐ 입지 개발 환경







▶ 당 사업지는 한화, 자이, LG의 역사적인 만남으로 명사들께 헌정하는 프리미엄 레지던스, 자이S&D의 운영위탁으로 제공되는 품격높은 서비스와 프리미엄 리조트 건설의 리더 한화건설 시공, LG전자의 안전관리 시스템으로 완성되는 하이엔드 시니어 하우스 라우어의 특별함을 경험해 보십시오
▶ 사업지는 해안인접, 역세권, 대형인프라의 희소가치까지 높은 주거지로 바다, 역세권충족 주거지 희소성으로 부산 내 최고의 아파트로 자리매김
▶ 당 사업지는 가덕도 신공항 개발에 따른 오시리아에서 신공항까지 광역 교통망 확충 예정으로 가덕도 신공항에서 오시리아역까지 38분 소요 예정으로 2030년 완공 예정
▶ 서울 청량리에서 사업지까지 2시간41분 소요예상, 부전-울산76분소요, 향후 강릉까지 3시간34분 소요예상, 가덕도 신공항까지는 30분내외 소요 예상
▶ 부산 오시리아의 중심을 누리는 클래스가 다른 특급 입지!
부 의 흐름이 이어지는 부산 리치벨트의 기대작
센텀시티에서 마린시티, 그리고 엘시티로 이어진 부산 리치벨트가 오시리아의 중심, 라우어로 어어집니다.
새로운 패러다임의 시작, 하이엔드 시니어 하우스 라우어로 귀하를 초대합니다.
◐ 단지 배치 계획


▶ 오시리아역 라우어의 새로운 작품 하이엔드 시니어하우스 Active한뉴그레이들을 위한 시니어 하우스 일상 생활 지원이 필요한 더 퍼스트하우스 유닛과 다른 취향, 다른 필요에 맞춰 선택할수 있다
◐ 단지 설계 계획

◐ 커뮤니티 시설 & 컨시어지 계획


▶ 최고급 리조트처럼 여우로운 공간에 여가와 문화를 테마로 한 지하 어메니티를 1틍에 배치했습니다. 활력을 더해주틑 피트니스센터, 캐주얼 다이닝과 조식 서비스를 제공하는 식당, 라운지, 힐링센터 등 지인들과 즐거운 시간을 보낼 수 있는 다양한 시설들이 조성될 계획입니다
▶ 다채로운 여가활동을 즐길 수 있는 고품격 어메니티 시설들을 지상 1층에 배치했습니다.
게임룸, 탁구장, 당구장 등 다양한 라이프스타일을 고혀한 취미시설과 지인들과 즐거운 시간을 보낼수 있는 북카페, 문화강좌, 취미교실 등 다양한 프로그램을 누릴 수 있는 그랜드볼룸이 조성될 계획입니다
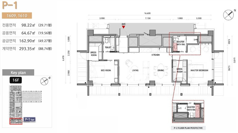
◐ 타입별 평면도 계획







◐ 특화 설계 계획


◐ 기장 오시리아 라우어 PREMIUM






■ 분양 관련 문의 ■
분양 홍보관 대표번호
관련문의 / 타입종류 / 분양가격 / 홍보관 위치
일육공공 - 팔구일구
편안하고 깊이 있는 상담을 위하여방문은 사전예약을 통해서만 가능하오니 양해 부탁드립니다.

#오시리아실버타운
#오시리아라티브
#오시리아라우어
#부산기장실버타운
#부산실버타운
'오피스텔.생숙.호텔.풀빌라.수익형' 카테고리의 다른 글
| 인천 청라 시티타워역 월드 메르디앙 레이크원 주거용 오피스텔 특별공급 타입별 분양 가격 문의 모델하우스 방문 사전예약 안내 (0) | 2025.05.22 |
|---|---|
| 청주 더샵 오창 프레스티지 주거용 오피스텔 특별공급 타입별 분양 가격 문의 모델하우스 방문 사전예약 안내 (0) | 2025.05.22 |
| 부천 월드메르디앙 라제스티 원미동 주거용 오피스텔 특별공급 타입별 분양 가격 문의 모델하우스 방문 사전예약 안내 (0) | 2025.05.22 |
| 대전 둔산 그랑르피에드 둔산동 주거용 오피스텔 특별공급 타입별 분양 가격 문의 모델하우스 방문 사전예약 안내 (0) | 2025.05.20 |
| 파주 운정 푸르지오 파크라인 와동동 주거용 오피스텔 특별공급 타이별 분양 가격 문의 대표번호 모델하우스 방문 사전예약 안내 (0) | 2025.05.20 |